




Guanacaste is renowned for its diverse range of tourist activities, from exploring pristine beaches to engaging in adventurous eco-tours. This vibrant tourism scene is a magnet for real estate development, offering investors a chance to capitalize on the steady flow of visitors. We are planning to create luxury homes and condos that provide both comfort and proximity to popular tourist attractions.
- Contact us today to explore exciting investment opportunities in the dynamic and thriving Guanacaste real estate market.
- Costa Rica’s stable government and strong economic policies provide a secure environment for real estate investments.
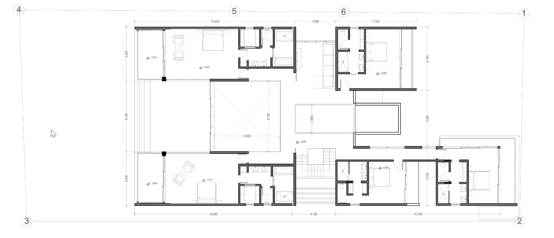
- Future projects in Guanacaste include smart community developments, luxury homes, luxury condos, and various commercial properties.
- Key cities and communities in Guanacaste, such as Tamarindo, Liberia, and Playas del Coco, are prime locations for real estate development.
- Costa Rica’s tourism industry is rapidly growing, providing numerous real estate investment opportunities in Guanacaste.
- Guanacaste offers a diverse range of tourist activities, from pristine beaches to adventurous eco-tours, making it an ideal location for luxury property development.
- The investment property sector in Costa Rica is booming, with high demand for premium real estate options in the Guanacaste region.
- USA and Canadian expats and retirees are increasingly choosing Guanacaste for its beautiful landscapes, favorable climate, and welcoming communities.
Future Projects
Future Projects
Share






The investment property sector in Costa Rica is growing rapidly, with the Guanacaste region at the forefront. Our upcoming projects aim to meet the increasing demand for premium real estate options, including luxury condos and commercial properties. Investors looking for lucrative opportunities should consider partnering with us to explore the potential of this thriving market.

Costa Rica is becoming a favored destination for USA and Canadian expats and retirees, particularly in Guanacaste. The region's appeal lies in its beautiful landscapes, favorable climate, and welcoming communities. We are developing projects that cater to this growing demographic, offering smart community developments and luxurious living spaces designed to meet their needs and preferences.

With its stable government and strong economic policies, Costa Rica provides a secure environment for real estate investments. The Guanacaste region, in particular, is ripe for development, with its key cities and communities such as Tamarindo, Liberia, and Playas del Coco. Our future projects focus on creating a mix of luxury homes, condos, and commercial properties, ensuring a diverse portfolio for investors. Contact us today to explore the exciting opportunities in this dynamic market.

Explore our other developments
Discover premier Costa Rica developments with our exclusive collection of properties, including a condotel, luxury houses, beach clubs, and sunset villas. Explore your dream investment today!
-
Mono Loco Beach Club
Regular price $45,000.00Regular priceUnit price / per -
Mono Luxe Villas
Regular price $790,000.00Regular priceUnit price / per -
Casa Linda Luxury Beachfront Residence
Regular price $11,900,000.00Regular priceUnit price / per -
Casa Masoni
Regular price $2,900,000.00Regular priceUnit price / per -
Sunset Beachfront Luxury Villas
Regular price $2,500,000.00Regular priceUnit price / per